Angélique Recordon Négociatrice
Télécharger la fiche
Coup de coeur

Maison 1 pièce(s) 3 chambre(s) 155 m²

Feytiat (87220)
75 600 € Référence 2246

A propos de ce bien

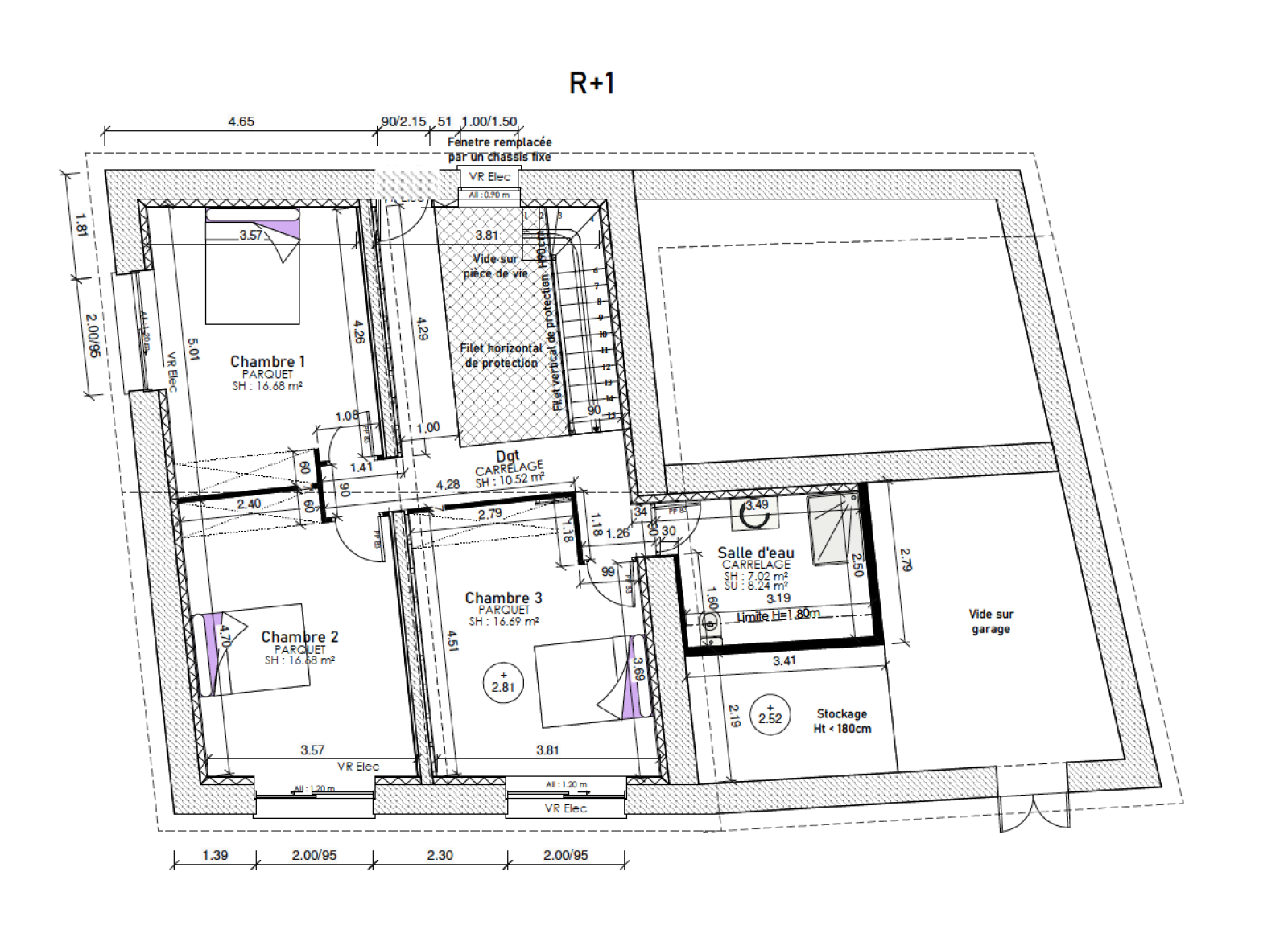
À vendre – Grange à réhabiliter en habitation – Commune de Feytiat (sud de Limoges)

Située sur la charmante commune de Feytiat, au sud de Limoges, cette grange offre une belle opportunité de réhabilitation en logement.

L’ensemble bénéficie déjà de tous les permis et plans validés, permettant de démarrer le projet rapidement et sereinement. Les travaux nécessaires ont été estimés à environ 150 000 € devis à l'appuis, offrant la possibilité de créer un bien unique et adapté à vos besoins.

Avec son potentiel et son caractère, cette grange représente une base idéale pour une résidence principale, une maison secondaire ou un projet locatif dans un environnement calme et verdoyant, tout en restant proche de Limoges et de ses commodités.

« Les informations sur les risques auxquels ce bien est exposé sont disponibles sur le site Géorisques : www.georisques.gouv.fr ».

La présente annonce a été rédigée sous la responsabilité éditoriale d'Angélique Recordon (ADC 8701 2019 000 204 786), Agent Commercial mandataire en immobilier, immatriculée au Registre Spécial des Agents Commerciaux (RSAC) du Tribunal de Commerce de Limoges N° 525 188 603. Pour tout renseignement, veuillez contacter Angélique Recordon au 06 60 49 31 66 ou par mail arecordon.rphimmobilier@gmail.com. Le prix indiqué comprend les honoraires à la charge de l’acheteur : 8 % TTC du prix du bien hors honoraires.Prix de vente honoraires inclus : 75 600 € TTC HAI Prix de vente hors honoraires : 70 000 € TTC Référence annonce : 2246

Caractéristiques de ce bien

  • Surface 155 m²
  • 3 chambre(s)

Diagnostics énergétiques

DPE
GES
DPE non concerné

Informations financières

Prix de vente honoraires TTC inclus 75 600 €
Prix de vente honoraires TTC exclus 70 000 €
Honoraires TTC à la charge acquéreur 8 %

Autour du bien

  • Commerces et santé
  • Loisirs
  • Ecoles
  • Transports
  • Pratique

Calcul des mensualités

* Champs obligatoires