

Partager sur
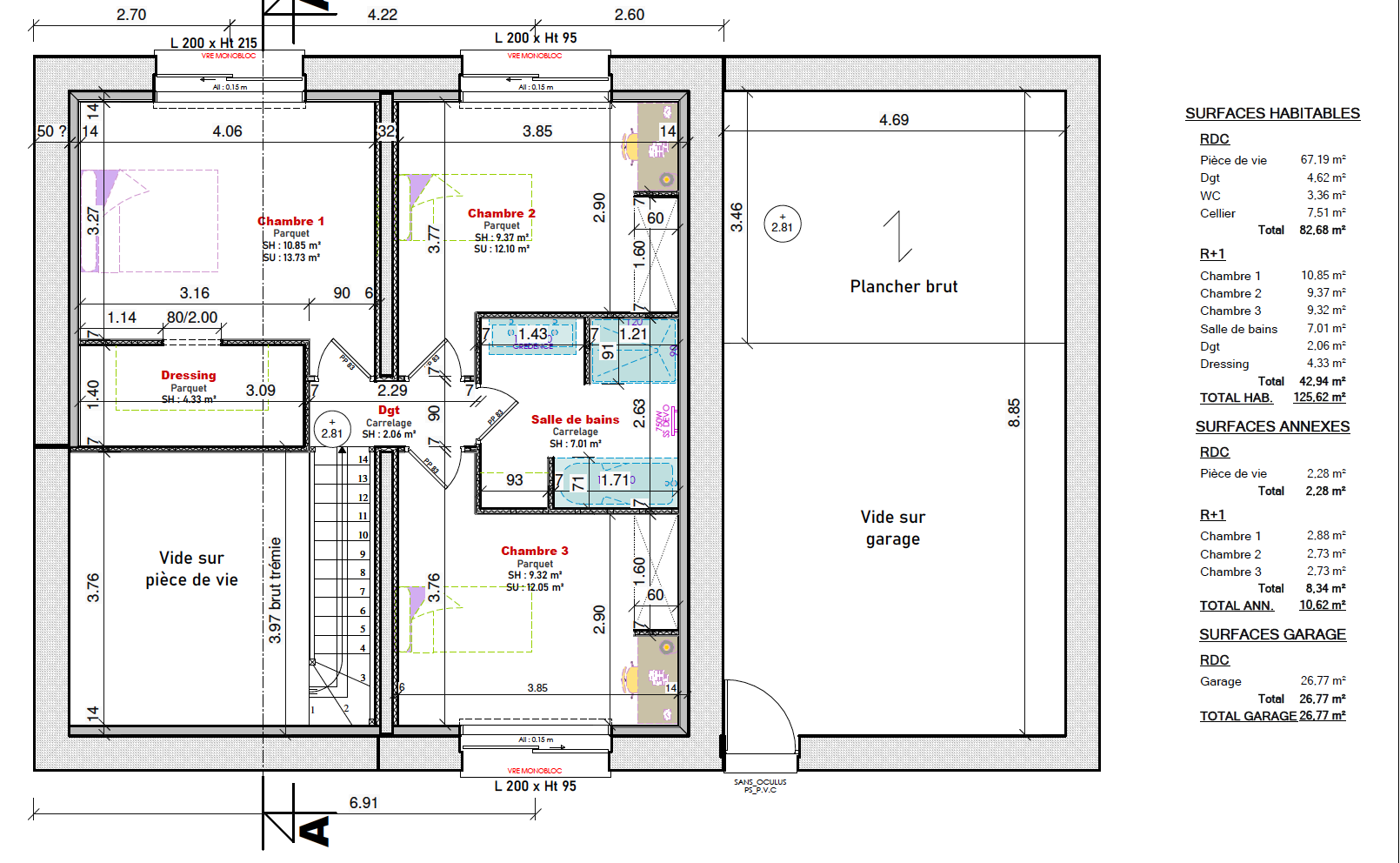
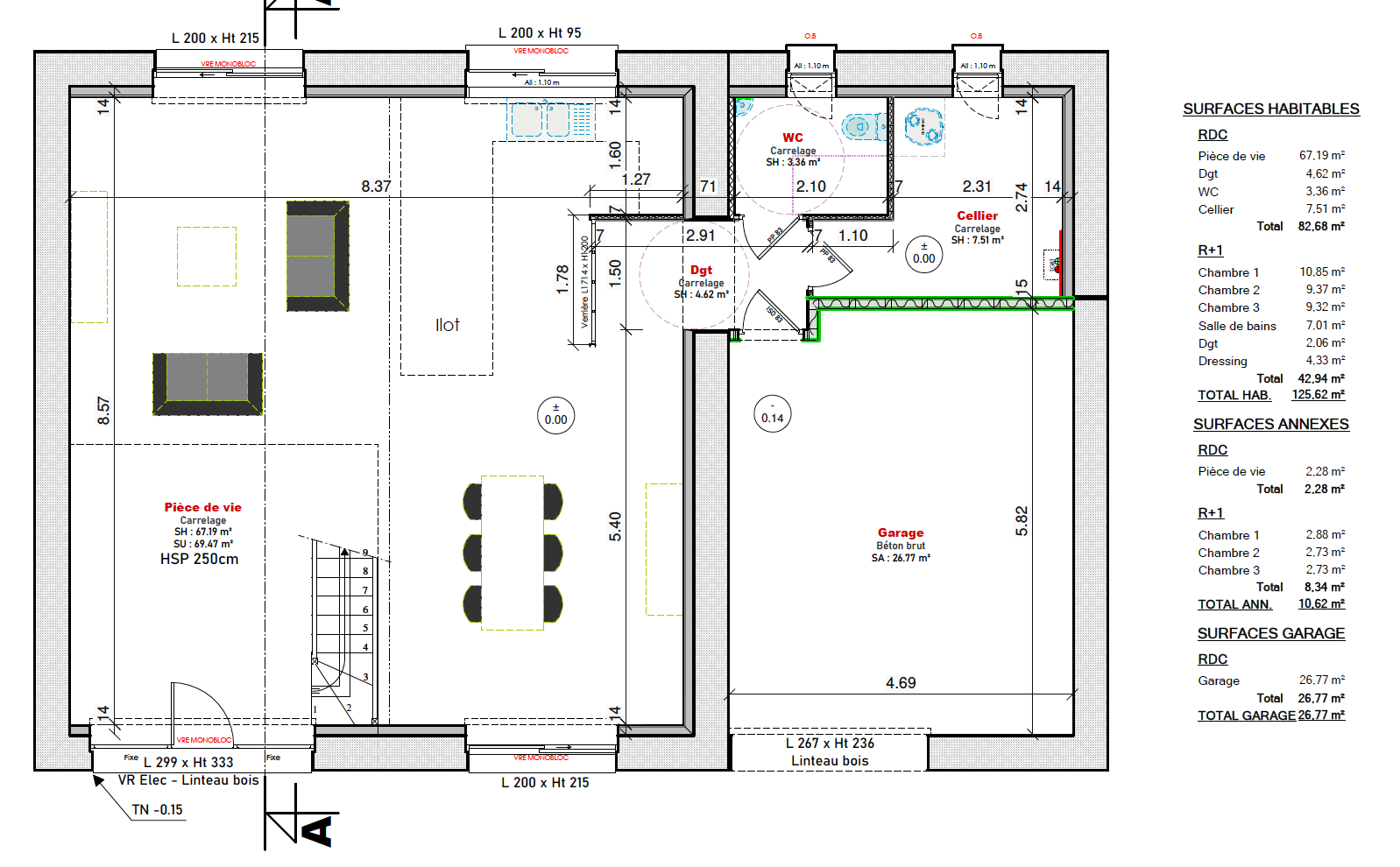
À vendre Grange à réhabiliter en habitation Commune de Feytiat (sud de Limoges) Située sur la charmante commune de Feytiat, au sud de Limoges, cette grange offre une belle opportunité de réhabilitation en logement. L’ensemble bénéficie déjà de tous les permis et plans validés, permettant de démarrer le projet rapidement et sereinement. Les travaux nécessaires ont été estimés à environ 185 000 € devis à l'appuis (avec changement complet de la charpente et de la couverture), offrant la possibilité de créer un bien unique et adapté à vos besoins. Avec son potentiel et son caractère, cette grange représente une base idéale pour une résidence principale, une maison secondaire ou un projet locatif dans un environnement calme et verdoyant, tout en restant proche de Limoges et de ses commodités. « Les informations sur les risques auxquels ce bien est exposé sont disponibles sur le site Géorisques : www.georisques.gouv.fr ». La présente annonce a été rédigée sous la responsabilité éditoriale d'Angélique Recordon (ADC 8701 2019 000 204 786), Agent Commercial mandataire en immobilier, immatriculée au Registre Spécial des Agents Commerciaux (RSAC) du Tribunal de Commerce de Limoges N° 525 188 603. Pour tout renseignement, veuillez contacter Angélique Recordon au 06 60 49 31 66 ou par mail arecordon.rphimmobilier@gmail.com. Le prix indiqué comprend les honoraires à la charge de l’acheteur : 8 % TTC du prix du bien hors honoraires.Prix de vente honoraires inclus : 97 200 € TTC HAI Prix de vente hors honoraires : 90 000 € TTC Référence annonce : 2247
Code postal 82200
Surface habitable (m²) 125 m²
Nombre de chambre(s) 3
Nombre de pièces 1
Copropriété NON
plan de sauvegarde NON
Prix de vente honoraires TTC inclus 97 200 €
Prix de vente honoraires TTC exclus 90 000 €
Honoraires TTC à la charge acquéreur 8 %
* : Les informations recueillies sur ce formulaire sont enregistrées dans un fichier informatisé par La Boite Immo agissant comme Sous-traitant du traitement pour la gestion de la clientèle/prospects de l'Agence / du Réseau qui reste Responsable du Traitement de vos Données personnelles.
La base légale du traitement repose sur l’intérêt légitime de l'Agence / du Réseau.
Elles sont conservées jusqu'à demande de suppression et sont destinées à l'Agence / au Réseau.
Conformément à la loi « informatique et libertés », vous pouvez exercer votre droit d'accès aux données vous concernant et les faire rectifier en contactant l'Agence / le Réseau.
Si vous estimez, après avoir contacté l'Agence / le Réseau, que vos droits « Informatique et Libertés » ne sont pas respectés, vous pouvez adresser une réclamation à la CNIL.
Nous vous informons de l’existence de la liste d'opposition au démarchage téléphonique « Bloctel », sur laquelle vous pouvez vous inscrire ici : https://www.bloctel.gouv.fr
Dans le cadre de la protection des Données personnelles, nous vous invitons à ne pas inscrire de Données sensibles dans le champ de saisie libre
Ce site est protégé par reCAPTCHA, les Politiques de Confidentialité et les Conditions d'Utilisation de Google s'appliquent.